Zbieraj BROpoints przy każdym zakupie!

Direkt ist günstiger für Dich!Direkt ist günstiger für Dich!

Wusstest du, dass Preisvergleich-Plattformen und Suchmaschinen bei jedem Kauf fett mitverdienen? Über 20 % vom Preis gehen nur für Werbung drauf – und das zahlen am Ende alle mit. Wir sagen: Nein danke und möchten die Werbekosten lieber als Preisreduktion an Euch weitergeben!

Aus diesem Grund übermitteln wir nicht mehr unseren gesamten Bestand, die Bestpreis-Angebote und Deals an die großen Plattformen und können Dir so - neben den Geschenken, BROpoints und anderen Vorteilen - wesentlich bessere Preise geben, die Du ausschließlich bei uns findest. Deswegen lohnt es sich, ohne Umwege, direkt zu uns zu kommen.

Initiative für bessere Preise und mehr Fairness im Online-Handel.

Finde hier ALLE ANGEBOTE, für die wir derzeit den Online-Bestpreis haben.

Szczegóły produktu i zakres dostawy

SKU: 137954
EAN: 4012432313371

Zakres dostawy:
- 1x Zamek wpuszczany antypaniczny SSF Funkcja antypaniczna E zaokrąglona

Opis produktu:
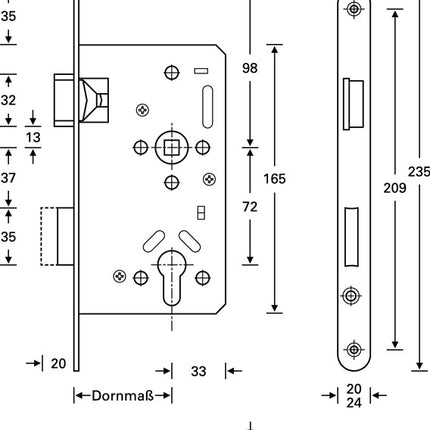
funkcja antypaniczna E - do jednoskrzydłowych drzwi drewnianych lub stalowych - ochrona przeciwpożarowa zgodna z DIN 18250 klasa 3 i DIN EN 179 - konstrukcja PZW - 2-obrotowy - zapadka wykonana ze stali z łbem z żeliwa ciągliwego, niklowana - rygiel wykonany ze stali niklowanej - rozstaw 72 mm - kwadrat 9 mm - długość płyty czołowej 235 mm wykonana ze stali nierdzewnej, zaokrąglona - obudowa zamka zamknięta ze wszystkich stron - nie można łączyć z gałką, wkładkami obrotowymi i elektronicznymi

Dane techniczne:
- Śruba: Stal
- Norma: DIN 18250 + EN 179
- Obudowa zamka: zamknięta ze wszystkich stron
- Zatrzask: stal
- Kierunek ataku: DIN lewy
- Szerokość płyty czołowej: 20 mm
- Rozstaw: 65 mm
- Czoło: stal nierdzewna
- Odległość: 72 mm
- Kwadrat: 9 mm
- Funkcja antypaniczna: E
- Konstrukcja czoła: zaokrąglona
- Długość czółka: 235 mm
- Dźwignia sterująca: Standard
- Perforacja: PZW
- Śruba blokująca: 2-obrotowa
- Nadaje się do: 1-skrzydłowe drzwi drewniane/stalowe
- Marka: SSFFDo użytku komercyjnego, należy przestrzegać przepisów budowlanych!

W przypadku użytku komercyjnego należy przestrzegać przepisów budowlanych!

Kształt produktu

SSF Zamek antypaniczny wpuszczany Seria 20 APE ( 3000252877 ) Funkcja antypaniczna E zaokrąglony Stal nierdzewna

  • Producent SSF
  • Stan  Nowe towary
  • Unzufrieden? 100 Tage kostenfreie Retoure
  • Wysłane dzisiaj? Zamówienie w ciągu:
€51,25
z VAT, plus koszty wysyłki

W magazynie Dostawa przewidziana w ciągu  sob., 29.11.2025

    • American Express
    • Apple Pay
    • Google Pay
    • iDEAL
    • Klarna
    • Mastercard
    • +12 weitere

    +780.000 BROs folgen uns auf

     

    Smarte Produktberatung

    Rechnung, Versand & GPSR

    Versand & Rechnung durch: Dinotech e.K.

    Osoba odpowiedzialna za UE (GPSR) Podmiot gospodarczy z siedzibą w UE, który zapewnia zgodność produktu z wymaganymi przepisami.
    • Sächsische Schlossfabrik GmbH
    • Am Pappelhain 10
    • 4539 Groitzsch
    • Germany
    • +493429673300
    • info@ssf.de

    Szczegóły produktu i zakres dostawy

    SKU: 137954
    EAN: 4012432313371

    Zakres dostawy:
    - 1x Zamek wpuszczany antypaniczny SSF Funkcja antypaniczna E zaokrąglona

    Opis produktu:
    funkcja antypaniczna E - do jednoskrzydłowych drzwi drewnianych lub stalowych - ochrona przeciwpożarowa zgodna z DIN 18250 klasa 3 i DIN EN 179 - konstrukcja PZW - 2-obrotowy - zapadka wykonana ze stali z łbem z żeliwa ciągliwego, niklowana - rygiel wykonany ze stali niklowanej - rozstaw 72 mm - kwadrat 9 mm - długość płyty czołowej 235 mm wykonana ze stali nierdzewnej, zaokrąglona - obudowa zamka zamknięta ze wszystkich stron - nie można łączyć z gałką, wkładkami obrotowymi i elektronicznymi

    Dane techniczne:
    - Śruba: Stal
    - Norma: DIN 18250 + EN 179
    - Obudowa zamka: zamknięta ze wszystkich stron
    - Zatrzask: stal
    - Kierunek ataku: DIN lewy
    - Szerokość płyty czołowej: 20 mm
    - Rozstaw: 65 mm
    - Czoło: stal nierdzewna
    - Odległość: 72 mm
    - Kwadrat: 9 mm
    - Funkcja antypaniczna: E
    - Konstrukcja czoła: zaokrąglona
    - Długość czółka: 235 mm
    - Dźwignia sterująca: Standard
    - Perforacja: PZW
    - Śruba blokująca: 2-obrotowa
    - Nadaje się do: 1-skrzydłowe drzwi drewniane/stalowe
    - Marka: SSFFDo użytku komercyjnego, należy przestrzegać przepisów budowlanych!

    W przypadku użytku komercyjnego należy przestrzegać przepisów budowlanych!

    Ostatnio oglądane

    Najważniejsze pytania w skrócie

    Jak mogę zapłacić za zamówienie?

    Oferujemy wiele bezpiecznych metod płatności:

    Metody płatności online

    PayPal, KLARNA, Google Pay, Apple Pay i Shop Pay.

    Karty kredytowe

    Możesz również zapłacić za pomocą głównych kart kredytowych VISA, MasterCard i American Express. W tym przypadku płatność jest zabezpieczona przy użyciu metody 3D Secure. Jeśli będziemy mieć jakiekolwiek oznaki nieuczciwego zamówienia, automatycznie je anulujemy.

    Jak mogę otrzymać fakturę?

    Fakturę otrzymasz automatycznie w osobnej wiadomości e-mail od naszego partnera wysyłkowego po otrzymaniu płatności. Nie jest ona dostarczana bezpośrednio z potwierdzeniem odbioru. Faktura papierowa jest również dołączana do zamówienia.

    Dlatego prosimy o ponowne sprawdzenie folderu spamu i zarejestrowanie się w naszym portalu faktur.

    Zwroty: Chcę coś odesłać

    Jeśli chcesz zwrócić swoje zamówienie lub jego część i jesteś z UE 🇪🇺 , zapoznaj się z naszym portalem zwrotów.

    W przypadku zwrotów ze Szwajcarii 🇨🇭 i Liechtensteinu 🇱🇮 skorzystaj z tego portalu zwrotów

    Gdzie jest moje zamówienie?

    Istnieją różne sposoby śledzenia statusu przesyłki:

    Wysyłka trwa zazwyczaj 1-4 dni robocze. Jeśli trwa to dłużej lub uważasz, że paczka zaginęła, skontaktuj się z nami tutaj w naszym portalu problemów.

    Twoja rodzina narzędzi

    • <strong>Spersonalizowane porady</strong>

      Spersonalizowane porady

      W przeciwieństwie do wielu innych platform, u nas otrzymujesz spersonalizowane porady i usługę, która wspiera Cię przez cały czas.

    • <strong>Szybka wysyłka</strong>

      Szybka wysyłka

      Zapewniamy, że zazwyczaj otrzymasz swoje zamówienie w ciągu 2-4 dni roboczych. Aby to osiągnąć, współpracujemy z wybranymi sprzedawcami detalicznymi.

    • <strong>Najlepsze ceny</strong>

      Najlepsze ceny

      Dla każdego produktu z tym symbolem otrzymujesz obecnie najlepszą cenę online (w porównaniu z rynkiem niemieckim). Dokładne informacje znajdziesz na stronach produktów.

    To jest Toolbrothers

    Narzędzia są motorem napędowym naszego społeczeństwa. Niezależnie od tego, czy budujesz dom, kupiłeś szafę IKEA, czy w końcu chcesz naprawić kapiący kran. Potrzebujesz narzędzi. Dostarczamy Ci narzędzia - w stylu Toolbrothers.

    • Błyskawicznie
    • Niezawodny
    • Z najlepszą obsługą

    Logowanie

    Czy zapomniałeś hasła?

    Nie jesteś jeszcze członkiem klubu?
    Załóż konto