Zbieraj BROpoints przy każdym zakupie!

Direkt ist günstiger für Dich!Direkt ist günstiger für Dich!

Wusstest du, dass Preisvergleich-Plattformen und Suchmaschinen bei jedem Kauf fett mitverdienen? Über 20 % vom Preis gehen nur für Werbung drauf – und das zahlen am Ende alle mit. Wir sagen: Nein danke und möchten die Werbekosten lieber als Preisreduktion an Euch weitergeben!

Aus diesem Grund übermitteln wir nicht mehr unseren gesamten Bestand, die Bestpreis-Angebote und Deals an die großen Plattformen und können Dir so - neben den Geschenken, BROpoints und anderen Vorteilen - wesentlich bessere Preise geben, die Du ausschließlich bei uns findest. Deswegen lohnt es sich, ohne Umwege, direkt zu uns zu kommen.

Initiative für bessere Preise und mehr Fairness im Online-Handel.

Finde hier ALLE ANGEBOTE, für die wir derzeit den Online-Bestpreis haben.

Szczegóły produktu i zakres dostawy

SKU: 72674
EAN: 4012432501464

Zakres dostawy:
- Zamek wpuszczany antypaniczny APK z serii 20 Funkcja antypaniczna E zaokrąglona

Opis produktu:
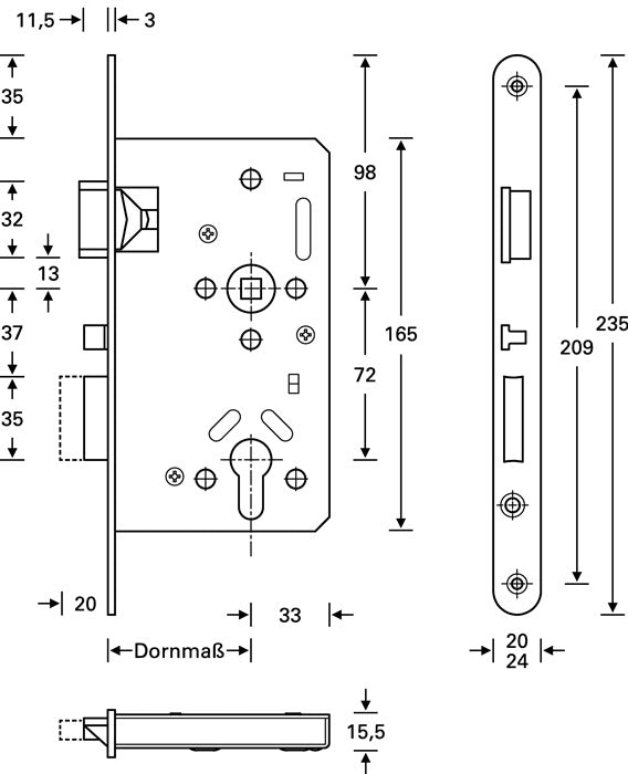
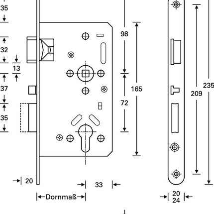
Funkcja antypaniczna E - samozamykający - do jednoskrzydłowych drzwi drewnianych lub stalowych - ochrona przeciwpożarowa zgodna z DIN 18250 klasa 3 i DIN EN 179 - konstrukcja PZW - jednostronnego działania - zapadka wykonana ze stali z łbem z żeliwa ciągliwego, niklowana - rygiel wykonany ze stali niklowanej - rozstaw 72 mm - kwadrat 9 mm - długość płyty czołowej 235 mm ze stali nierdzewnej, zaokrąglona - obudowa zamka zamknięta ze wszystkich stron - redukcja hałasu podczas automatycznego blokowania - gdy rygiel jest zablokowany, jest blokowany wcześniej niż zapadka - możliwość łączenia z wkładkami standardowymi, gałkowymi i swobodnymi

Dane techniczne:
- Śruba: stal
- Konstrukcja: samoblokująca
- Norma: DIN 18250 + EN 179
- Obudowa zamka: zamknięta ze wszystkich stron
- Zatrzask: stal

W przypadku użytku komercyjnego należy przestrzegać przepisów budowlanych!

Kształt produktu

SSF Zamek antypaniczny wpuszczany Seria 20 APK Funkcja antypaniczna E zaokrąglony ( 3000252897 )

  • Producent SSF
  • Stan  Nowe towary
  • Unzufrieden? 100 Tage kostenfreie Retoure
    €112,16
    z VAT, plus koszty wysyłki

    W magazynie Dostawa przewidziana w ciągu  czw., 27.11.2025

      • American Express
      • Apple Pay
      • Google Pay
      • iDEAL
      • Klarna
      • Mastercard
      • +12 weitere

      +780.000 BROs folgen uns auf

       

      Smarte Produktberatung

      Rechnung, Versand & GPSR

      Versand & Rechnung durch: Dinotech e.K.

      Osoba odpowiedzialna za UE (GPSR) Podmiot gospodarczy z siedzibą w UE, który zapewnia zgodność produktu z wymaganymi przepisami.
      • info@ssf.de
      • +493429673300
      • Germany
      • 4539 Groitzsch
      • Am Pappelhain 10
      • Sächsische Schlossfabrik GmbH

      Szczegóły produktu i zakres dostawy

      SKU: 72674
      EAN: 4012432501464

      Zakres dostawy:
      - Zamek wpuszczany antypaniczny APK z serii 20 Funkcja antypaniczna E zaokrąglona

      Opis produktu:
      Funkcja antypaniczna E - samozamykający - do jednoskrzydłowych drzwi drewnianych lub stalowych - ochrona przeciwpożarowa zgodna z DIN 18250 klasa 3 i DIN EN 179 - konstrukcja PZW - jednostronnego działania - zapadka wykonana ze stali z łbem z żeliwa ciągliwego, niklowana - rygiel wykonany ze stali niklowanej - rozstaw 72 mm - kwadrat 9 mm - długość płyty czołowej 235 mm ze stali nierdzewnej, zaokrąglona - obudowa zamka zamknięta ze wszystkich stron - redukcja hałasu podczas automatycznego blokowania - gdy rygiel jest zablokowany, jest blokowany wcześniej niż zapadka - możliwość łączenia z wkładkami standardowymi, gałkowymi i swobodnymi

      Dane techniczne:
      - Śruba: stal
      - Konstrukcja: samoblokująca
      - Norma: DIN 18250 + EN 179
      - Obudowa zamka: zamknięta ze wszystkich stron
      - Zatrzask: stal

      W przypadku użytku komercyjnego należy przestrzegać przepisów budowlanych!

      Ostatnio oglądane

      Najważniejsze pytania w skrócie

      Jak mogę zapłacić za zamówienie?

      Oferujemy wiele bezpiecznych metod płatności:

      Metody płatności online

      PayPal, KLARNA, Google Pay, Apple Pay i Shop Pay.

      Karty kredytowe

      Możesz również zapłacić za pomocą głównych kart kredytowych VISA, MasterCard i American Express. W tym przypadku płatność jest zabezpieczona przy użyciu metody 3D Secure. Jeśli będziemy mieć jakiekolwiek oznaki nieuczciwego zamówienia, automatycznie je anulujemy.

      Jak mogę otrzymać fakturę?

      Fakturę otrzymasz automatycznie w osobnej wiadomości e-mail od naszego partnera wysyłkowego po otrzymaniu płatności. Nie jest ona dostarczana bezpośrednio z potwierdzeniem odbioru. Faktura papierowa jest również dołączana do zamówienia.

      Dlatego prosimy o ponowne sprawdzenie folderu spamu i zarejestrowanie się w naszym portalu faktur.

      Zwroty: Chcę coś odesłać

      Jeśli chcesz zwrócić swoje zamówienie lub jego część i jesteś z UE 🇪🇺 , zapoznaj się z naszym portalem zwrotów.

      W przypadku zwrotów ze Szwajcarii 🇨🇭 i Liechtensteinu 🇱🇮 skorzystaj z tego portalu zwrotów

      Gdzie jest moje zamówienie?

      Istnieją różne sposoby śledzenia statusu przesyłki:

      Wysyłka trwa zazwyczaj 1-4 dni robocze. Jeśli trwa to dłużej lub uważasz, że paczka zaginęła, skontaktuj się z nami tutaj w naszym portalu problemów.

      Twoja rodzina narzędzi

      • <strong>Spersonalizowane porady</strong>

        Spersonalizowane porady

        W przeciwieństwie do wielu innych platform, u nas otrzymujesz spersonalizowane porady i usługę, która wspiera Cię przez cały czas.

      • <strong>Szybka wysyłka</strong>

        Szybka wysyłka

        Zapewniamy, że zazwyczaj otrzymasz swoje zamówienie w ciągu 2-4 dni roboczych. Aby to osiągnąć, współpracujemy z wybranymi sprzedawcami detalicznymi.

      • <strong>Najlepsze ceny</strong>

        Najlepsze ceny

        Dla każdego produktu z tym symbolem otrzymujesz obecnie najlepszą cenę online (w porównaniu z rynkiem niemieckim). Dokładne informacje znajdziesz na stronach produktów.

      To jest Toolbrothers

      Narzędzia są motorem napędowym naszego społeczeństwa. Niezależnie od tego, czy budujesz dom, kupiłeś szafę IKEA, czy w końcu chcesz naprawić kapiący kran. Potrzebujesz narzędzi. Dostarczamy Ci narzędzia - w stylu Toolbrothers.

      • Błyskawicznie
      • Niezawodny
      • Z najlepszą obsługą

      Logowanie

      Czy zapomniałeś hasła?

      Nie jesteś jeszcze członkiem klubu?
      Załóż konto